Ночь
Тонировать окна
Архитектурный ландшафт
Стоимость дома
12 000 000 руб.
Настройка
планировки
Монолитный
-2 000 000 руб.
0 руб.
0 руб.
0 руб.
1 200 000 руб.
560 000 руб.
Очистка
Инженерные сети
Ландшафт
Кровля
Фундамент
Деревянный каркасный дом — это постройка, каркас которой выполнен из дерева. В этом случае стены создаются из утеплителя, который зашивается защитным материалом. Деревянный каркасный дом — это постройка, каркас которой выполнен из дерева.
Каркасный
Коробка с фасадом
Площадь дома
6 560 000 руб.
Тепло
Комфорт
Стоимость
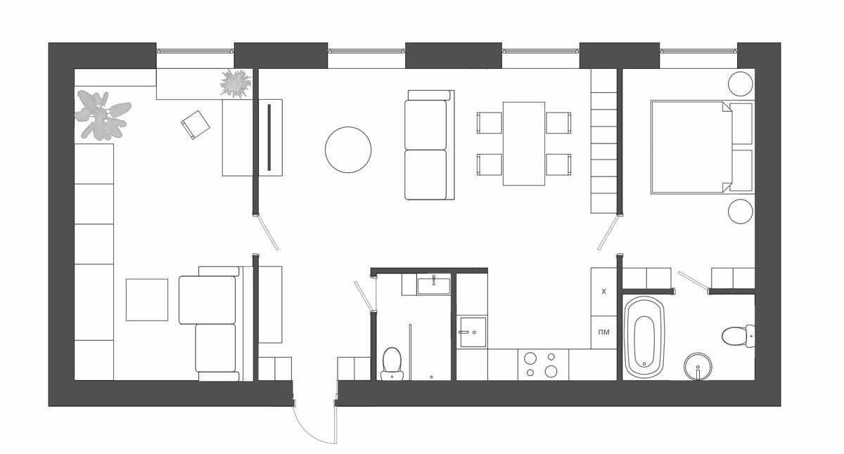
Адаптивная планировка - можно растягивать дом в плане,
при этом помещения будут изменяться в соответствии с заданными параметрами. Например, кухня будет увеличиваться с шагом 60см, чтобы можно было вставить дополнительный стандартный шкаф. Причем сначала увеличиваются те помещения, которые действительно стоит растянуть. В итоге на планировке не происходит увеличения площади за счет и так оптимальных помещений, например проработанных санузлов или достаточных по метражу спален.
Настройка
планировки
Можно выбрать готовое решение. оценив его на выбранной планировке, или собрать свой дизайн в Конструкторе отделки.
Готовый
дизайн-проект
Позволяет оценить затенение участка домом и учесть инсоляцию помещений. Влияет на стоимость оплаты отопления дома.
Проверка затенения